Wohnhaus D1
​​
BESCHREIBUNG
​
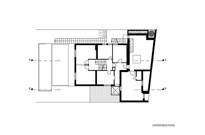
Ein mehrfach umgebautes Einfamilienhaus im 14.Bezirk in einer sehr steilen Hanglage sollte eine neue Eingangslösung, eine Doppelgarage, einen Fitnessraum, einen komfortablen Zugang zum Garten , eine neue Fassadengestaltung sowie eine neue Einfriedung erhalten.
Ein neuer verglaster außenliegender Aufzug sollte die 6 Splitt – Lever – Ebenen miteinander verbinden.
​
Der Fitnessraum wurde Unterirdischen angelegt und mit einem begehbaren Glasdach versehen.
Zahlen & Fakten
2018
Der Zugang zum Garten wurde mittels vorgefertigten Stahlbetonblockstufen hergestellt.
Die Einfriedung wurde mit senkrechten schräg gestellten pulverbeschichteten Aluminiumlamellen hergestellt und bildet zusammen mit der Garage und dem Haus ein vorgelagertes Atrium mit intensiv begrünten Flachdach.
Grundstücksgröße
Nettowohnfläche Alt
Nettowohnfläche Neu
Nebenräume Alt
Nebenräume Neu
Terrassenfläche Alt
Terrassenfläche Neu
Bebaute Fläche Alt
Bebaute Fläche Neu
Umbauter Raum Alt
Umbauter Raum Neu
(ohne Garage)
Doppelgarage
Planungsbeginn
Baubeginn
Fertigstellung
480 m2
….. m2
181 m2
83 m2
112 m2
22,5 m2
22,5 m2
120 m2
160 m2
934 m3
1.040 m3
​
01.07.2012
01.10.2015
01.05.2017










