Mehrfamilienhaus KINSKYKASSE 14, 1230 WIEN
​
BESCHREIBUNG
​
STÄDTEBAULICHE SITUATION
Es handelt sich beim Mehrfamilienwohnhaus in der Kinskygasse 14, 1230 Wien, um die Sanierung und den Umbau eines Gründerzeithauses sowie einem Neubau aus Holz.
Eine städtebaulich nicht sehr ansprechende Situation - bestehend aus einem Gründerzeithaus und mehreren EG Zubauten - wurde so umgebaut dass ein begrünter Innenhof mit zwei gegenüberliegenden Bauteilen entstand.
Auf die Errichtung von KFZ Stellplätzen im Hof wurde, zugunsten einer Begrünung, bewusst verzichtet.
​
DATEN UND FAKTEN
​
Planungsbeginn
Baubeginn
Fertigstellung
Gesamte Wohnnutzfläche
Gesamte Terrassenflächen
Gesamte Gartenflächen (ohne allgemeine Gartenflächen)
Dezember 2013
Februar 2015
September 2016
765 m2
55 m2
160m2
Neubau
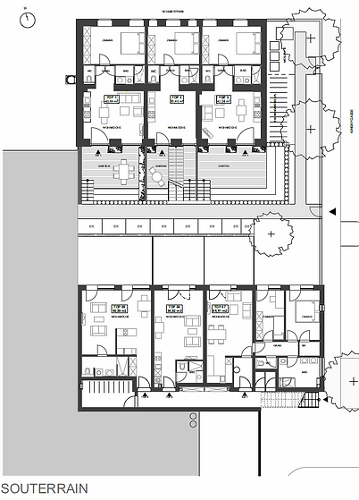
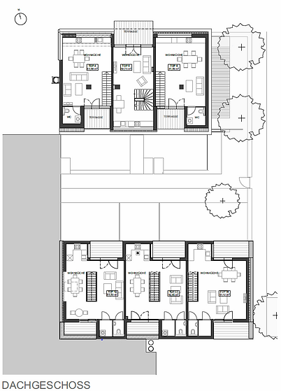
Im neu errichteten Bauteil befinden sich drei Wohnungen zwischen 31m2 und 66m2 im Erdgeschoß und drei Maisonette Wohnungen mit jeweils 93m2 im Ober- bzw. Dachgeschoss.
Den EG-Wohnungen ist jeweils ein Garten zugeordnet.
Bei den Maisonette Wohnungen befindet sich die Wohnebene im Dachgeschoss.
Jeder Wohnebene wurden zwei Terrassen zugeordnet.
Auf Ebene des Einganges der Maisonette Wohnungen befinden sich die Schlafzimmer, das Badezimmer, WC und Abstellraum.
Die Erschließung der Maisonette Wohnungen erfolgt über einen Laubengang.
Der Neubau wurde bis auf das Erdgeschoß komplett aus Brettschichtholzelementen errichtet.
Das EG musste aus brandschutztechnischen Gründen aus Hochlochziegel errichtet werden.
Die Fassade des EG, des OG und des DG besteht zum Teil aus einer hinterlüfteten Lärchen - Rhombus Verkleidung sowie einem Vollwärmeschutz.
Die Oberflächen der Terrasseneinschnitte sowie der geneigten Dachflächen bestehen aus einer hinterlüfteten Kupfer-Titan-Zink Bahnendeckung.
Auf dem Flachdach werden PV-Module aufgestellt.
Heizung
Die Wärmeversorgung der Wohnungen erfolgt mittels Infrarot Paneelen.
Auf den Dächern werden PV-Module aufgestellt.
Einlagerungsräume
Als Trennung der beiden Bauteile dienen Einlagerungsräume aus Metall. Diese wurden so groß konzipiert, dass die Eigentümer ihre Fahrräder darin einstellen können.






