Villa L1
​​
BESCHREIBUNG
​
Entwurf eines Wohnhauses in Obermillstatt in einer steilen Hanglage mit Blick auf den Millstätter See.
Die Erschließung des Hauses erfolgt von Flachdach über ein verglastes Treppenhaus.
Das Wohnhaus ist aus Kostengründen nur eingeschossig (Bungalow) konzipiert.
Das gesamte Flachdach ist bis auf das Carport begrünt und wird so von Außen nur gering wahrgenommen.
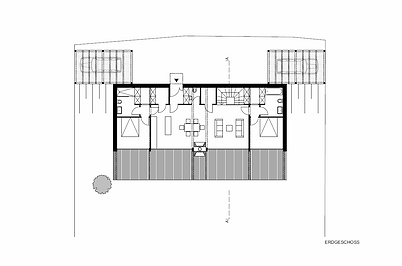
Zum See hin öffnet sich das Gebäude durch raumhohe Verglasungen, wobei alle Räume zu einem Atrium hin angeordnet sind.
Ein Carport bietet Platz für 2 KFZ Stellplätze und einige Motorad- und Fahrräder.
Zusätzlich wird das Dach des Carports mit einer Photovoltaik Anlage ausgestattet.
Zahlen & Fakten
​​
Grundstücksfläche
Nettowohnfläche
Nebenräume
Terrassenfläche
Bebaute Fläche
Umbauter Raum
Carport
​
Planungsbeginn
2018
740 m2
156 m2
12 m2
84 m2
203 m2
710 m3
58 m2
01.08.2015







